価格 |
1,280万円 |
||
|---|---|---|---|
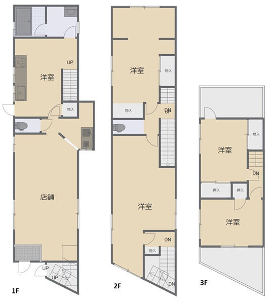
間取 |
- |
築年月 |
1966/09(築59年) |
建物面積 |
139.78m²(42.28坪) |
土地面積 |
67.97m²(20.56坪) |
所在地 |
堺市北区中長尾町2丁 |
||
交通 |
JR阪和線堺市駅まで 徒歩4分 |
お電話でのお問い合わせ
物件番号:10602
お電話でお問い合わせの際は、物件番号をお伝えください。
072-256-5060
営業時間:9:00 AM - 6:30 PM
定休日:水曜日・第2,3火曜日
ポイント
POINT

■JR阪和線 堺市駅まで徒歩4分!!
■周辺施設充実

スーパーイズミヤまで徒歩5分
ファミリーマートまで徒歩3分
東三国ヶ丘小学校まで徒歩7分 物件詳細DETAIL
建物構造 |
鉄骨・木造 |
学区 |
東三国丘小学校
長尾中学校 |
|---|---|---|---|
建ぺい率 |
80% |
容積率 |
300% |
地目 |
宅地 |
用途地域 |
近隣商業地域 |
取引態様 |
仲介 |
私道面積 |
- |
引渡時期 |
相談 |
土地権利 |
所有権 |
セットバック |
建築確認番号 |
||
接道 |
北東 22m(幅員) 公道 4.8m(接面) |
諸費用 |
|
特色/設備 |
南向きバルコニー!、駅・買物・徒歩圏内です。、買物等生活便利です。、3階建 |
||
情報更新日 |
2025年11月30日 |
次回更新予定日 |
2025年12月01日 |
取引条件有効期限 |
2025年12月07日 |
※掲載されている物件データが現状と異なる場合は現状を優先します。
周辺地図MAP
株式会社ジオ住建COMPANY
所在地 |
大阪府堺市北区長曽根町3079番地4 |
||
|---|---|---|---|
免許番号 |
大阪府知事免許(6)第44632号 |
||
会員 |
(社)全国宅地建物取引業保証協会会員
(社)大阪府宅地建物取引業協会会員
|
||
電話番号 |
072-256-5060 |
FAX番号 |
072-256-7778 |
営業時間 |
9:00 AM - 6:30 PM |
定休日 |
水曜日・第2,3火曜日 |

